Piso en VALLOBIN, con 75 m² construidos, 63 m² útiles, 2 dormitorios, 1 baños, buen estado, interior, planta 2, 3 armarios, cocina independiente, trastero, ascensor, orientación este, más de 30 años, 9 plantas del edificio, calefacción individual, energía calefacción gas natural, gastos de comunidad/mes de 80 €, incluye agua, suelo de parquet
Inmobiliaria La Finca pone a la venta este piso ubicado en Vallobín, a un paso de la Losa y del centro de Oviedo.
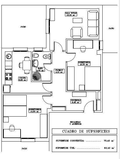
La vivienda consta de 2 grandes Dormitorios dobles con armarios de 5 puertas, Salón Comedor muy amplio, cocina independiente equipada con electrodomésticos, baño (con ducha y ventana) y hall de entrada con recibidor y armarios empotrados.
Los suelos de la casa son de parqué y cerámica en baño y cocina.
Tanto la cocina como el baño, han sido reformados en los últimos años con materiales de calidad.
La carpintería exterior es de PVC lacado en blanco.
Calefacción individual de gas.
La vivienda también dispone de trastero.
El edificio tiene ascensor.
Comunidad: 80€/MES, incluye agua y basura.
La propiedad se encuentra alquilada por 700€/MES.
No dudes en consultarnos si quieres visitar este inmueble.
¡¡¡NO TE PIERDAS ESTA OPORTUNIDAD!!!
